Nhà phố 5 tầng 1 tum Cuc’s House là một ngôi nhà phố hiện đại được thiết kế và xây dựng trên khu đất 470m2 của gia đình chị Cúc tại Lê Trọng Tấn, Hà Nội. Công trình được đội ngũ kiến trúc sư chú trọng đến yếu tố tiện nghi, tối ưu công năng sử dụng mang đến một không gian sống thoải mái và phù hợp với nhu cầu sử dụng của gia đình.
Hãy cùng SYM HOUSE chiêm ngưỡng ngôi nhà này dưới bài viết sau đây nhé. Chúng tôi hy vọng đây sẽ là một nguồn cảm hứng tuyệt vời cho những gia chủ đang tìm kiếm ý tưởng cho tổ ấm của mình.
Hiện trạng của mảnh đất xây dựng nhà phố 5 tầng 1 tum 470m2 tại Lê Trọng Tấn
Mảnh đất xây dựng ngôi nhà phố 5 tầng 1 tum của gia đình chị Cúc tại Lê Trọng Tấn, Hà Nội có diện tích xây dựng 470m2. Qua khảo sát thực tế, kiến trúc sư SYM HOUSE nhận thấy đây là một mảnh đất rất lý tưởng với các cạnh vuông vắn, không gặp phải các vấn đề về hình dáng đất xéo hay khuyết điểm nào khác. Đây sẽ là ưu điểm lớn giúp tạo điều kiện thuận lợi cho việc thiết kế và thi công ngôi nhà theo đúng ý tưởng của gia đình chị Cúc.
Ban đầu, chị Cúc (chủ đầu tư) cũng khá lo lắng khi ngôi nhà của mình xây dựng trong hẻm nhỏ. Một trong những mối quan tâm lớn nhất của chị là việc thi công phần móng “sợ” ảnh hưởng đến kết cấu và nền móng của các công trình nhà ở liền kề.
Thấu hiểu nỗi băn khoăn đó, dựa vào khảo sát hiện trạng thực tế chúng tôi đã tư vấn kỹ lưỡng và đưa ra một quy trình thi công rõ ràng, đảm bảo an toàn tuyệt đối với chị. Kiến trúc sư SYM HOUSE đã lựa chọn phương án ép móng cọc phù hợp với điều kiện đất nền tại khu vực, kết hợp kỹ thuật đào móng cẩn trọng, hạn chế tối đa tác động đến các công trình xung quanh.

Không chỉ giúp khách hàng an tâm, SYM HOUSE còn thể hiện rõ sự chuyên nghiệp và tinh thần trách nhiệm trong từng khâu thi công từ giai đoạn thi công móng, đổ sàn các tầng cho đến đổ mái,…. Mỗi công đoạn đều được giám sát chặt chẽ bởi đội ngũ kỹ sư tại SYM HOUSE 24/7 nhằm đảm bảo chất lượng thi công chuẩn chỉnh đến từng chi tiết.
Bên cạnh đó, toàn bộ tiến độ công việc hàng ngày đều được chúng tôi ghi lại đầy đủ, minh bạch và cập nhật thường xuyên. Nhờ đó, chị Cúc có thể dễ dàng theo dõi quá trình thi công dù không thường xuyên có mặt tại công trình.
Dự án thiết kế nhà phố 5 tầng 1 tum sáng thoáng và tiện nghi trên nền đất 470m2
Mặt tiền nhà phố 5 tầng 1 tum đơn giản nhưng tinh tế trong từng khối hình
Cuc’s House được kiến trúc sư SYM HOUSE lấy ý tưởng thiết kế theo phong cách hiện đại, tối giản, chú trọng sự thông thoáng và khai thác tối đa chiều cao của công trình. Mặt tiền của ngôi nhà phố này phát triển theo phương thẳng đứng với hình khối vuông vức, dứt khoát tạo nên dáng vẻ mạnh mẽ và đầy cuốn hút ngay từ ánh nhìn đầu tiên.

Tầng trệt chúng tôi sử dụng chất liệu gạch đá để ốp phần mặt tiền tạo cảm giác vững chãi, sang trọng. Từ tầng 2 đến tầng 5, mặt tiền được phân chia rõ ràng thành các mảng ngang cân đối.
Mảng tường lớn sơn trắng sáng tạo nên cảm giác sạch sẽ và tinh tế, trong khi những mảng ốp màu nâu nhạt xen kẽ khéo léo xung quanh các ô cửa sổ lại mang đến điểm nhấn ấm áp và có chiều sâu.

Cửa kính khung nhôm màu đen với kích thước phù hợp trên mặt tiền được bố trí hợp lý nhằm tối ưu hóa ánh sáng tự nhiên và gió trời, giúp không gian bên trong nhà luôn thoáng đãng và dễ chịu.
Ngoài ra, ban công tại các tầng tuy nhỏ hẹp nhưng kiến trúc sư SYM HOUSE đã xử lý khéo léo với lan can sắt tĩnh điện thanh mảnh màu đen. Bố trí thêm một vài chậu cây xanh sẽ mang lại sức sống và là điểm nhấn độc đáo cho phần mặt tiền đỡ “mờ nhạt”.

Tầng tum được chúng tôi thiết kế lùi vào so với mặt tiền các tầng dưới, điều này sẽ giúp tạo hiệu ứng thị giác nhẹ nhàng, thanh thoát cho tổng thể công trình công trình.
Để Cuc’s House thật sự phô diễn trọn vẹn diện mạo ấn tượng của mình, đặc biệt khi đêm xuống, thì không thể không nhắc đến hệ thống ánh sáng được bố trí tinh tế tại mỗi ban công của từng tầng.

Mặt bằng công năng bố trí khoa học, tối ưu không gian, tiện nghi trong từng chi tiết
Mặt bằng công năng được bố trí khoa học, hợp lý đến từng chi tiết nhỏ mang đến không gian sống tối ưu và đầy đủ tiện nghi cho gia đình. Từng khu vực chức năng trong ngôi nhà được đội ngũ chúng tôi sắp xếp linh hoạt, đáp ứng nhu cầu sử dụng thực tế giúp tối đa hoá hiệu quả sử dụng diện tích, đồng thời đảm bảo sự thông thoáng, liền mạch giữa các không gian.

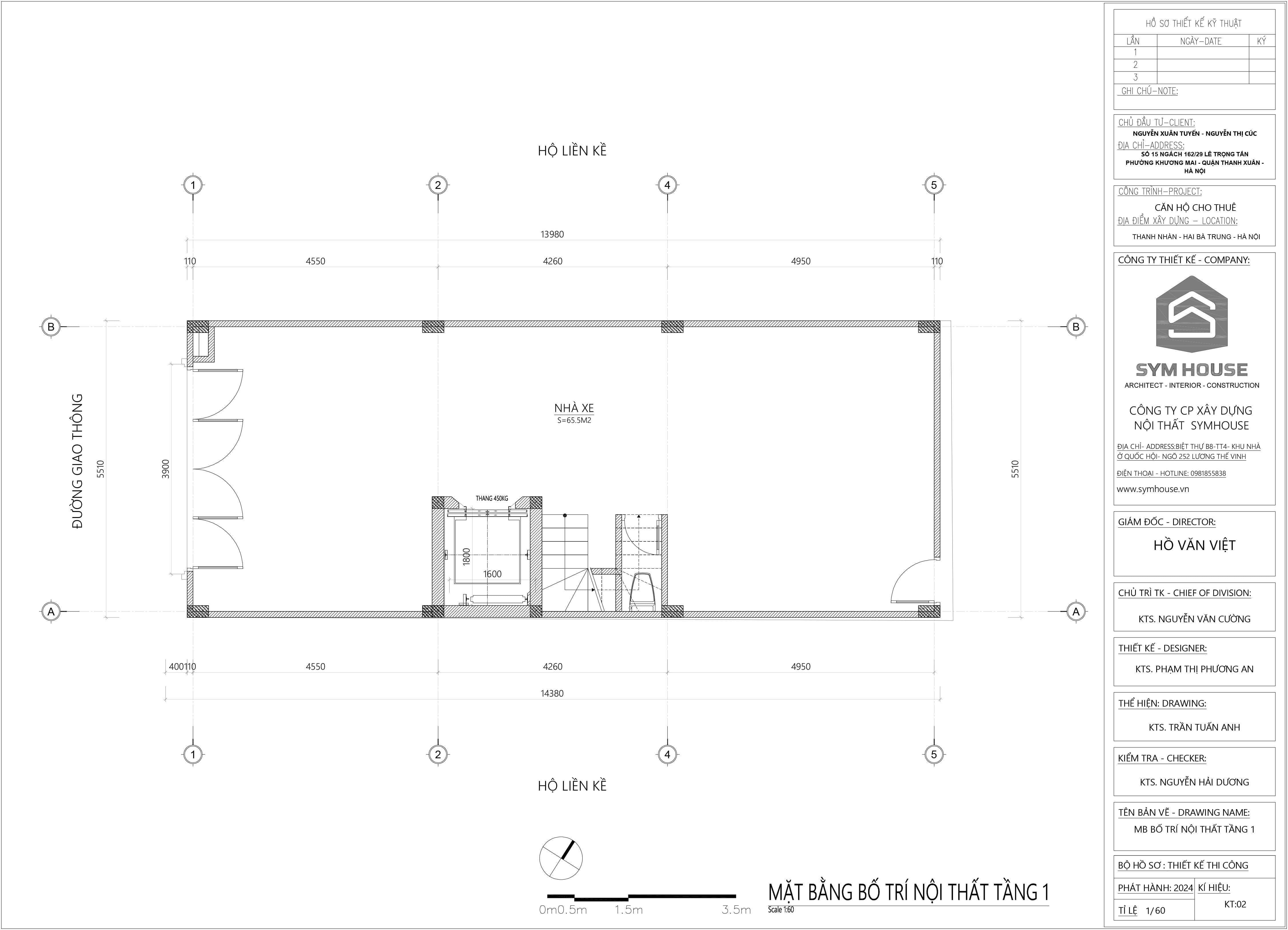
Ở mặt bằng tầng 1, không gian được quy hoạch hợp lý với khu vực để xe rộng rãi, đáp ứng nhu cầu sử dụng thường xuyên của gia đình một cách thuận tiện và an toàn. Khu vực thang máy được bố trí kiến trúc sư bố trí thông minh, giúp việc di chuyển giữa các tầng trở nên dễ dàng. Song song đó, cầu thang bộ được thiết kế gọn gàng, hài hoà với tổng thể kiến trúc.
Bên cạnh đó, một nhà vệ sinh nhỏ sắp đặt khéo léo đặt dưới cầu thang đi bộ vừa tiết kiệm diện tích, vừa đảm bảo đầy đủ công năng sử dụng cơ bản mà vẫn giữ được sự thông thoáng, thẩm mỹ cho không gian tầng 1.
Dựa trên mong muốn của khách hàng là sử dụng ngôi nhà với mục đích kinh doanh cho thuê, đội ngũ kiến trúc sư tại SYM HOUSE đã nghiên cứu kỹ lưỡng và đề xuất những giải pháp thiết kế thông minh, tối ưu công năng sử dụng tại các tầng 2,3,4,5.
Thay vì phân tán không gian chức năng, chúng tôi đã khéo léo bố trí khu vực bếp, khu giặt phơi và nhà vệ sinh khép kín, không gian nghỉ ngơi nằm trên cùng một mặt bằng. Cách tổ chức không gian này không chỉ mang lại sự tiện nghi tối đa cho người thuê mà còn đảm bảo tính riêng tư, tạo cảm giác như đang sống trong một căn hộ độc lập.
Việc tích hợp đầy đủ các khu vực sinh hoạt cần thiết trong một diện tích gọn gàng vừa giúp chị Cúc tại Lê Trọng Tấn, Hà Nội dễ dàng quản lý, đồng thời tăng giá trị khai thác cho thuê từng tầng, từng phòng một cách rõ ràng và cụ thể.




Tại tầng tum của Cuc’s House, đội ngũ kiến trúc sư SYM HOUSE tiếp tục duy trì thiết kế tối ưu công năng bằng cách bố trí thêm một không gian phòng khép kín với đầy đủ tiện ích giống như các phòng ở các tầng phía dưới.
Để tối ưu hóa công năng sử dụng và mang lại trải nghiệm tiện nghi hơn cho người ở, chúng tôi đã thiết lập hệ mái che phù hợp với kiến trúc tổng thể của ngôi nhà. Hệ mái che này giúp che nắng, chắn mưa một cách hiệu quả mà còn tạo nên một không gian sinh hoạt ngoài trời đầy lý tưởng
Sau quá trình tư vấn kỹ lưỡng và làm việc chuyên nghiệp, dự án thiết kế nhà phố 5 tầng 1 tum của gia đình chị Cúc tại Lê Trọng Tấn, Hà Nội đã được SYM HOUSE hoàn thành đúng tiến độ như cam kết. Đội ngũ chúng tôi đã nhanh chóng đưa ra những giải pháp thiết kế tối ưu, phù hợp với hiện trạng khu đất cũng như nhu cầu sinh hoạt thực tế của gia đình.
Chị Cúc chia sẻ với chúng tôi rằng:
“Cảm ơn đội ngũ kiến trúc sư SYM HOUSE đã tư vấn cho tôi rất nhiệt từng và đưa ra các giải pháp thiết kế vừa tối ưu công năng sử dụng, tiện nghi, bố trí các khu vực khoa học. Sự chuyên nghiệp và tâm huyết của đội ngũ SYM HOUSE khiến tôi cảm thấy rất yên tâm và tin tưởng, đó là lý do mà tôi quyết định ký kết hợp đồng thiết kế – thi công trọn gói với SYM HOUSE để bắt đầu hành trình xây dựng ngôi nhà 5 tầng 1 tum trên nền đất 470m2 này.
Tôi tin rằng, với kinh nghiệm và tâm huyết của mình, công ty sẽ tiếp tục đồng hành và kiến tạo cho gia đình tôi một công trình hoàn thiện, chất lượng và đầy cảm xúc. Hy vọng dự án sẽ diễn ra suôn sẻ và chìa khóa trao tay đúng tiến độ như mong đợi”


Tóm lại, Cuc’s House là một dự án nhà phố cao tầng tiếp theo mà SYM HOUSE đảm nhận. Mỗi công trình với lối thiết kế và công năng riêng biệt đều mang đến cho SYM những thử thách mới, giúp đội ngũ SYM HOUSE không ngừng sáng tạo và hoàn thiện bản thân qua từng dự án.
Mỗi công trình không chỉ là một bài toán kỹ thuật cần được giải quyết, mà còn là cơ hội để chúng tôi thể hiện sự chuyên nghiệp và tâm huyết trong từng chi tiết thiết kế đến quá trình thi công đúng kỹ thuật đảm bảo an toàn mang lại không gian sống tiện nghi và đẳng cấp cho chủ đầu tư.
Vậy, chần chừ gì nữa nếu bạn đang có nhu cầu muốn xây dựng nhà phố thì đừng quên liên hệ ngay với SYM HOUSE qua số Hotline: 0986.685.538 để được tư vấn kỹ hơn về thiết kế cũng như khai toán chi phi thi công phù hợp với diện tích và nhu cầu sử dụng của quý khách hàng. SYM HOUSE luôn sẵn sàng phục vụ quý khách trên mọi dải đất chữ S Việt Nam!
>>>Xem thêm:









